๐Ÿ’ฅ INVESTOR OPPORTUNITY | HANDYMAN SPECIAL / VALUE-ADD RENTAL | CASH BUYERS ๐Ÿ’ฅ- 3929 Country Pl, Winter Haven, FL 33880

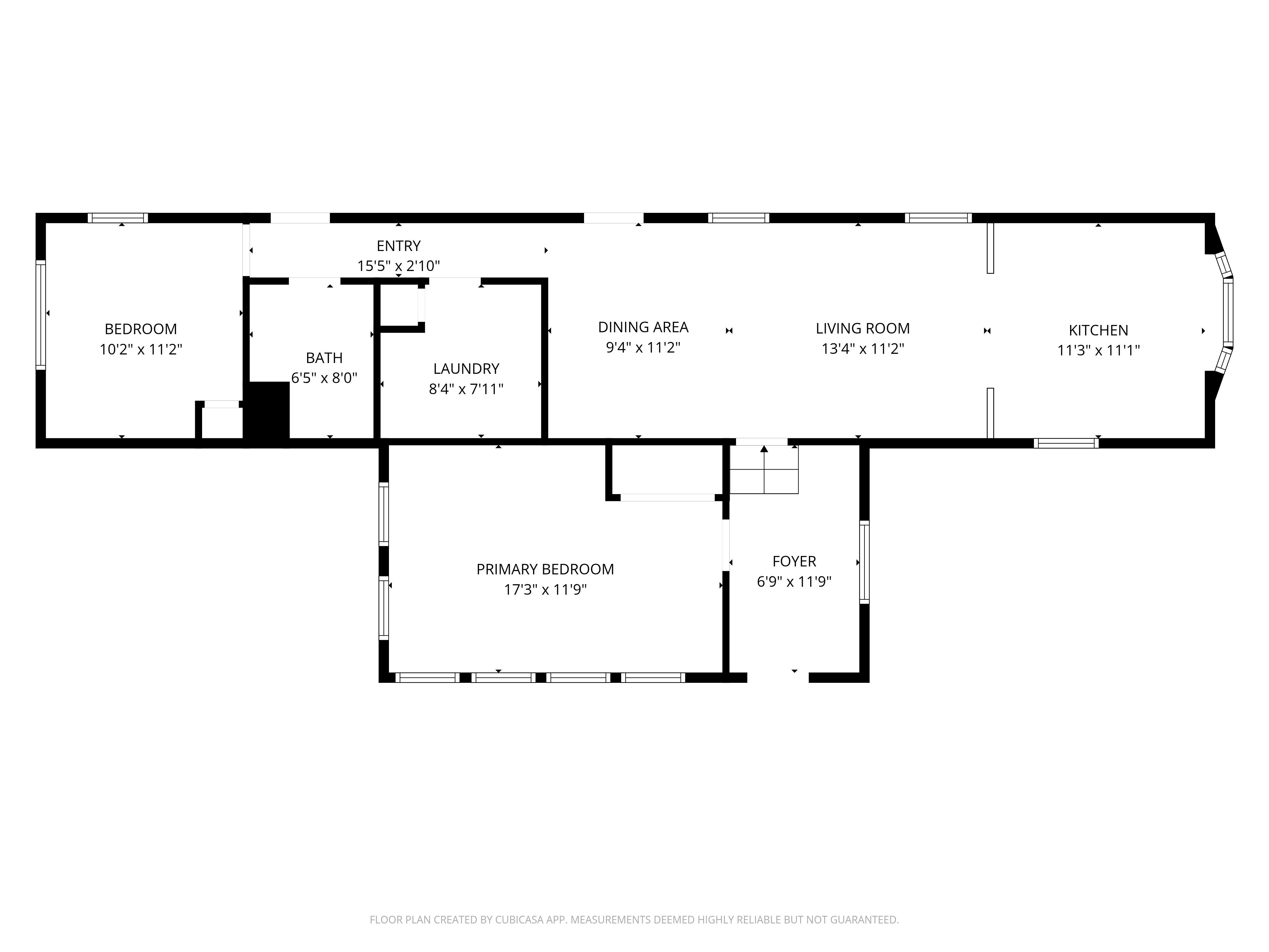
3 Beds / 1 Baths โ€ข 732 SqFt
Offer Submission Deadline
  • Mobile Home
  • 3
  • 1
  • 1973
  • 732
  • 15834

Description

">

๐Ÿ’ฅ INVESTOR OPPORTUNITY | HANDYMAN SPECIAL / VALUE-ADD RENTAL | CASH BUYERS ๐Ÿ’ฅ

Unlock strong rental income and value-add potential with this fixer-upper located in the heart of Polk County. Ideal for investors, landlords, fix-and-flippers, or owner-occupants, this property offers multiple exit strategies.

The home is currently leased at $1,100/month, providing immediate income while renovations are planned. Situated on a spacious 0.36-acre fully fenced lot, the property features 3 bedrooms, 1 bathroom, a covered porch, ceiling fans throughout, a durable metal roof, and an on-site shedโ€”all solid fundamentals for a value-add project.

The property is being sold AS-IS, allowing buyers full flexibility to renovate, reposition, increase rents, or resell.

๐Ÿš— LOCATION HIGHLIGHTS โ€“ STRONG RENTAL DEMAND AREA

Conveniently located near parks, schools, shopping, and local attractions, this property sits minutes from LEGOLAND Florida Resort, a major driver of consistent rental demand. Enjoy the best of Polk County lake life, surrounded by lakes and canals, with easy access to the Chain of Lakes Trailโ€”ideal for walking, biking, and outdoor recreation. These features enhance long-term rental appeal and resale value.

๐Ÿ’ฐ ASKING PRICE: $40K โ€” CASH OFFERS PREFERRED ๐Ÿ’ฐ

A solid opportunity to acquire a property with existing income, upside through renovations, and strong location fundamentals.

๐Ÿ“ž For additional details or to express interest, call or text Alex or John at (407) 250-9642

Estimated Spread

  • ARV $100,000
  • Price $40,000
  • Spread $60,000

DOCS

File Name Size

Four_Point_Inspection_Report.pdf

38kb
Download